Sold

Displaying: of 29

Agent Details

Tony ONeill

Share

Size and Location!

Sold for $570,000

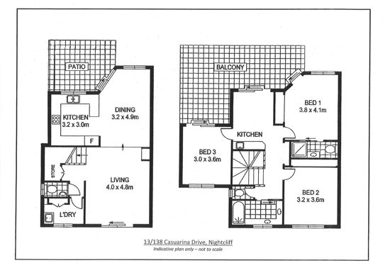
13/138 Casuarina Drive, Nightcliff

3
2
2

Profile

Sensational location on the Nightcliff Foreshore!

This rare free-standing townhouse boasts a 389sqm yard.

This is a lifestyle to aspire to -
* Free-standing townhouse in a lovely complex
* Land size 389sqm
* Wrap around yard, with a generous back garden
* 3 large bedrooms
* Main bedroom with ensuite
* Huge living/dining/kitchen area at ground level
* Upstairs kitchenette for entertaining
* Adjoins the expansive upstairs verandah
* Fully tiled interior
* Fully air-conditioned (splits)
* Excellent car parking options
* Sea breezes all day long
* Short stroll to shops and local markets
* Resort-style pool in the complex
* Vacant now, ready to move into

Body Corporate managed by Whittles Darwin
Strata fees are $1598 pq
Darwin City rates approx. $1326p.a + garbage $334p.a

Features

18797085
Property ID
3
Bedrooms
2
Bathrooms
1
Garage
389 sqm approx.
Land Size
Air Conditioning
Built In Robes
1
Car Spaces
Split System

Send Enquiry

Your Details
Your Enquiry
  1. Please describe how we can be of assistance to you.

  2.  

    Would you like to join our mail list?

Submit